111 modelos, 20 nuevos

Selector idioma


Modular homes promotion in Ibiza

Group of detached single-family homes, each with its own swimming pool.

New development of three modular homes underway in Ibiza. A set of three industrialized single-family homes located on the same plot in Ibiza, each with its own outdoor space and swimming pool. A project with a total of 583 m² built between the three houses.

The designs of the three houses were based on the Alcuida model from our 111 modular house catalog, with minor changes to the layout and aesthetics, but always maintaining similar materials and finishes. A style that references pure Mediterranean architecture, with the use of natural stone on all facades and white single-layer paint.

The clients, two brothers who owned this land in Ibiza, wanted to build a house for each of their respective children. For this reason, the houses are located on the same plot, but are on three different levels. 

These small elevations in the terrain allow each space to be divided smoothly and naturally, with a gentle fence providing each house with privacy and a private outdoor space, while also integrating them naturally into the terrain. The orientation of each house on the plot is optimized in terms of views and space, providing privacy in each one.

Each home consists of four modules, 95% factory-finished, including the natural stone facade, and transported by truck and ship from our factory in Almussafes (Valencia) to Ibiza. 

583

Promotion of modular
homes in Ibiza

Casa modular dentro de fábrica construyéndose

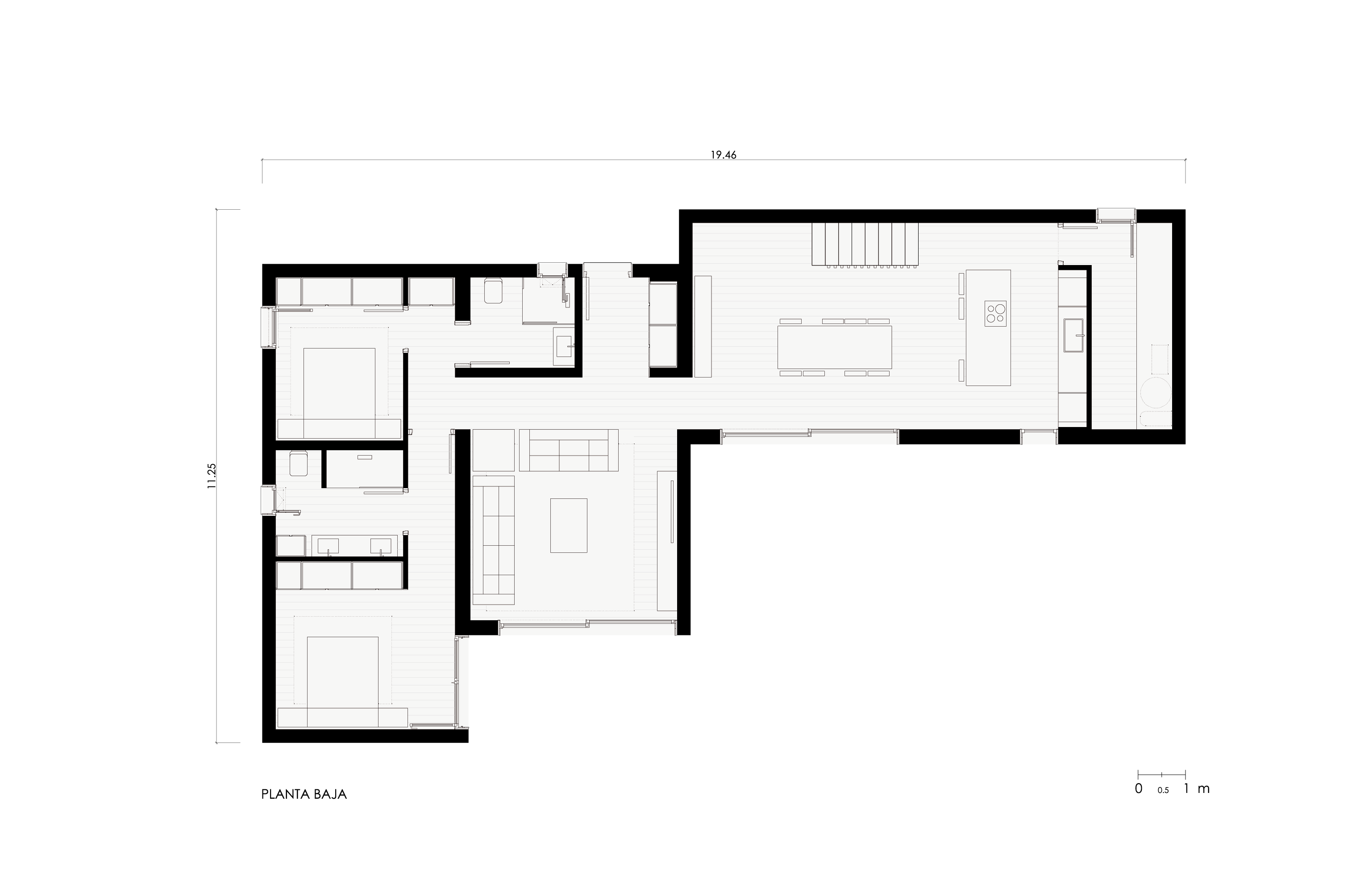
House 1 - 219 m²

Located on the highest part of the plot, this is the largest home in the development. Its design consists of four modules and a series of canopies that create spacious porches and shaded areas, giving it a marked horizontality in its volume. The interior layout includes four bedrooms, three bathrooms, a kitchen, dining room, and living room connected, as well as a pantry and laundry room, clearly separating the day and night areas.

Promoción de viviendas modulares en Ibiza, primera vivienda
Render casa prefabricada para promoción en Ibiza
Plan and layout

Modular housing 1, modular home development in Ibiza

Ground floor
First floor

Hosuing 2 - 178 m²

Located in the center of the plot, this house maintains an L-shaped floor plan, with a more compact aesthetic. It consists of four modules and a pergola that defines the outdoor space. Its interior layout organizes the living area in one wing of the ground floor, while the sleeping area is divided between the other wing of the ground floor and the upper level. It has three bedrooms, three bathrooms, and an office, which is the only one of the three that incorporates a separate workspace.

Promoción de viviendas modulares en Ibiza, segunda vivienda
Render casa prefabricada para promoción en Ibiza
Plan and layout

Modular house 2, development of industrialized houses in Ibiza

Ground floor
First floor

Hosuing 3 - 186 m²

The third house also has four modules and an outdoor pergola, with a design that divides the layout into two floors. On the ground floor there are two bedrooms, a bathroom, a laundry room and a shared kitchen-dining-living room area. Upstairs, two further bedrooms share a third bathroom, making a total of four bedrooms and three bathrooms. The complex combines functionality and spaciousness, adapting to the terrain and making the most of the views and orientation.

Promoción de viviendas modulares en Ibiza, tercera vivienda
Render casa prefabricada con piedra natural en fachada para promoción en Ibiza
Plan and layout

Prefabricated house 3, housing development in Ibiza

Ground floor
First floor
On-site assembly

Promotion of modular homes in Ibiza, three houses consisting of four modules each. The modules and canopies were transported by lorry and boat on three different days. They were installed as they were completed in the factory.

Implantación vivienda modular para promoción de casas en Ibiza
Casa modular implantada en parcela
Advantages of outsourcing your project

The advantage of offshoring the construction of your housing development

The possibility of relocating construction is one of the great advantages of the inHAUS industrialised system, especially for developers seeking agility, control and quality anywhere in the country. 

 

Thanks to our construction model, we can manufacture up to 95% of each home in our factory in Valencia, under controlled conditions. This minimises unforeseen events on site, execution times on the plot and associated costs. 

 

For developers, this represents a radical transformation in the way the process is managed: dependence on local labour is eliminated, deadlines are optimised with accurate planning and a high standard of quality is guaranteed from the design phase to delivery.

 

In addition, the inHAUS model offers total technical traceability, with a single point of contact and no gaps between design, construction and execution. This translates into greater profitability, greater security and a significant reduction in return on investment times.