Prefabricated concrete house Alicante model 4D 2P 2.283
-
" LOADING="LAZY" SRCSET="HTTPS://CASASINHAUS.COM/WP-CONTENT/UPLOADS/2023/09/PREFABRICATED.CONCRETE-HOUSE-STONE-ALICANTE-INHAUS.JPG 1920W, HTTPS://CASASINHAUS.COM/WP-CONTENT/UPLOADS/2023/09/PREFABRICATED.CONCRETE-HOUSE-STONE-ALICANTE-INHAUS-300X169.JPG 300W, HTTPS://CASASINHAUS.COM/WP-CONTENT/UPLOADS/2023/09/PREFABRICATED.CONCRETE-HOUSE-STONE-ALICANTE-INHAUS-1024X576.JPG 1024W, HTTPS://CASASINHAUS.COM/WP-CONTENT/UPLOADS/2023/09/PREFABRICATED.CONCRETE-HOUSE-STONE-ALICANTE-INHAUS-768X432.JPG 768W, HTTPS://CASASINHAUS.COM/WP-CONTENT/UPLOADS/2023/09/PREFABRICATED.CONCRETE-HOUSE-STONE-ALICANTE-INHAUS-600X338.JPG 600W, HTTPS://CASASINHAUS.COM/WP-CONTENT/UPLOADS/2023/09/PREFABRICATED.CONCRETE-HOUSE-STONE-ALICANTE-INHAUS-1536X864.JPG 1536W, HTTPS://CASASINHAUS.COM/WP-CONTENT/UPLOADS/2023/09/PREFABRICATED.CONCRETE-HOUSE-STONE-ALICANTE-INHAUS-1150X646.JPG 1150W" SIZES="(MAX-WIDTH: 1920PX) 100VW, 1920PX
Property Detail
Contact us
Property Description
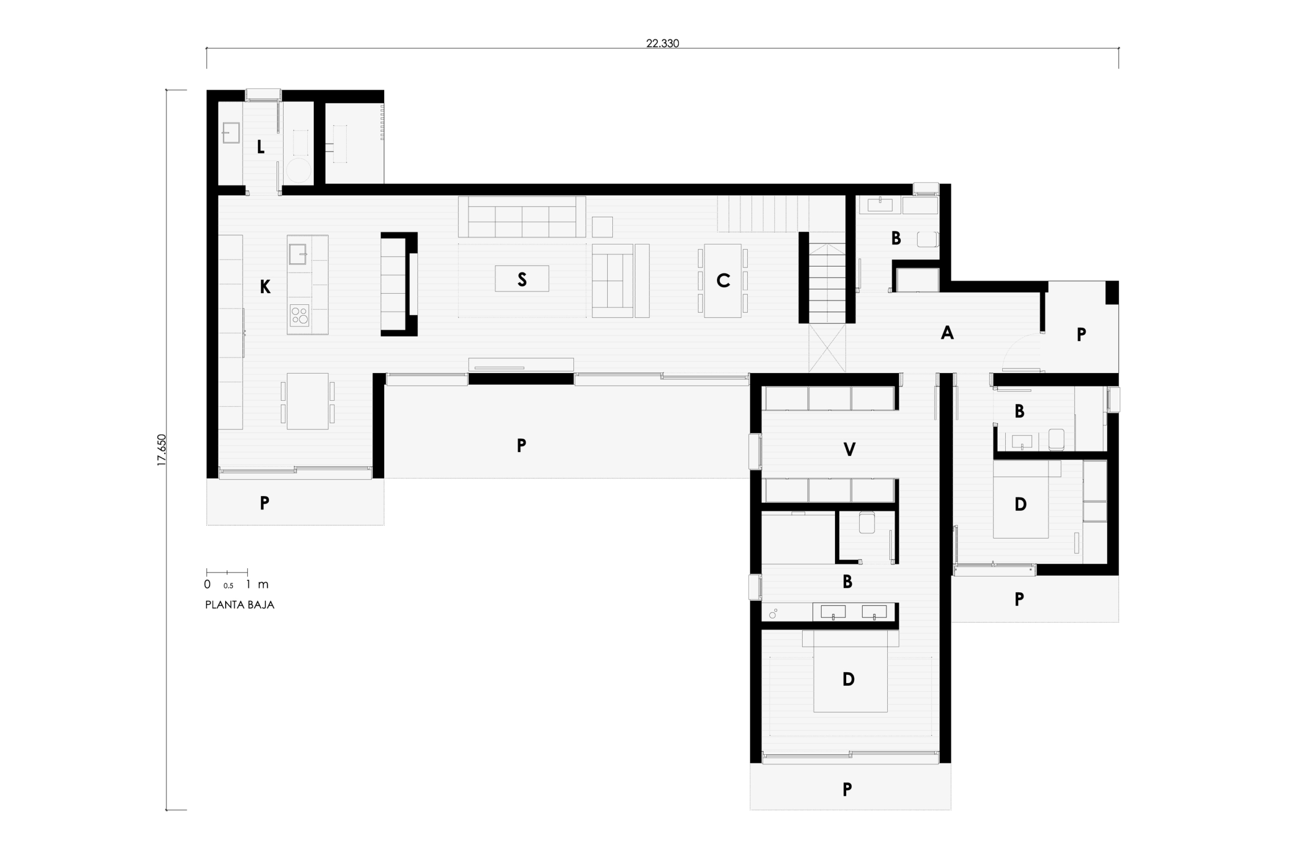
Robustness and stability in this high-performance prefabricated concrete house. Imposing 4-bedroom house on two floors, in which the layout of the volumes gives it its main hallmark. It also stands out for its Mediterranean aesthetic, with natural stone on its façade.
On the ground floor, the bodies at the ends close off the complex, creating an enclosed outdoor space, linked to the day area. The day area is articulated around this space for family enjoyment. Also on the ground floor, in another volume, there is a large master bedroom with dressing room and functional en suite bathroom, and another double bedroom with bathroom. The kitchen is articulated as another perpendicular arm, which ends up enveloping the outdoor space.
On the first floor, we find two double bedrooms, a complete bathroom and a multipurpose space next to the access staircase.
| USEFUL SURFACE | 225,60 | m2 | ||
| HOUSING | 195,58 | m2 | ||
| PORCHE | 11,22 | m2 | ||
| PERGOLA | 18,80 | m2 | ||
| GROUND FLOOR | ||||
| HOUSING | 143,25 | m2 | ||
| access | 11,08 | m2 | ||
| toilet | 3,90 | m2 | ||
| bedroom 01 | 11,20 | m2 | ||
| bathroom 01 | 4,03 | m2 | ||
| master bedroom | 18,09 | m2 | ||
| master bathroom | 8,13 | m2 | ||
| dressing room | 8,77 | m2 | ||
| staircase | 6,13 | m2 | ||
| living-dining room | 40,08 | m2 | ||
| kitchen | 25,21 | m2 | ||
| laundry room | 6,63 | m2 | ||
| PORCHE | 11,22 | m2 | ||
| access porche | 6,30 | m2 | ||
| windows porche | 4,92 | m2 | ||
| PERGOLA | 18,80 | m2 | ||
| pergola | 18,80 | m2 | ||
| FIRST FLOOR | ||||
| HOUSING | 52,33 | m2 | ||
| study / office room | 15,99 | m2 | ||
| hall | 6,25 | m2 | ||
| bedroom 02 | 12,89 | m2 | ||
| bedroom 03 | 12,91 | m2 | ||
| bathroom 02 | 4,29 | m2 | ||
| BUILT SURFACE | 282,83 | m2 | ||
| HOUSING | 252,49 | m2 | ||
| PORCHE | 11,54 | m2 | ||
| PERGOLA | 18,80 | m2 | ||
| GROUND FLOOR | ||||
| housing | 176,97 | m2 | ||
| porche | 11,54 | m2 | ||
| pergola | 18,80 | m2 | ||
| FIRST FLOOR | ||||
| housing | 75,52 | m2 | ||



