Casa prefabricada de hormigón modelo Masnou 4D 2P 2.310
-
" LOADING="LAZY" SRCSET="HTTPS://CASASINHAUS.COM/WP-CONTENT/UPLOADS/2019/04/2.305_MASNOU_CASA-DISEñO-MODERNO-PREFABRICADA-CASAS-INHAUS.JPG 1920W, HTTPS://CASASINHAUS.COM/WP-CONTENT/UPLOADS/2019/04/2.305_MASNOU_CASA-DISEñO-MODERNO-PREFABRICADA-CASAS-INHAUS-300X169.JPG 300W, HTTPS://CASASINHAUS.COM/WP-CONTENT/UPLOADS/2019/04/2.305_MASNOU_CASA-DISEñO-MODERNO-PREFABRICADA-CASAS-INHAUS-768X432.JPG 768W, HTTPS://CASASINHAUS.COM/WP-CONTENT/UPLOADS/2019/04/2.305_MASNOU_CASA-DISEñO-MODERNO-PREFABRICADA-CASAS-INHAUS-1024X576.JPG 1024W, HTTPS://CASASINHAUS.COM/WP-CONTENT/UPLOADS/2019/04/2.305_MASNOU_CASA-DISEñO-MODERNO-PREFABRICADA-CASAS-INHAUS-600X338.JPG 600W, HTTPS://CASASINHAUS.COM/WP-CONTENT/UPLOADS/2019/04/2.305_MASNOU_CASA-DISEñO-MODERNO-PREFABRICADA-CASAS-INHAUS-1150X646.JPG 1150W, HTTPS://CASASINHAUS.COM/WP-CONTENT/UPLOADS/2019/04/2.305_MASNOU_CASA-DISEñO-MODERNO-PREFABRICADA-CASAS-INHAUS-1320X743.JPG 1320W" SIZES="(MAX-WIDTH: 1920PX) 100VW, 1920PX
Detalles
Contacta con nosotros
"*" señala los campos obligatorios
Información
Una vivienda con un marcado estilo contemporáneo que cuenta con una riqueza espacial en todas sus estancias. Marcadas líneas recorren el diseño introduciendo un carácter moderno y dinámico.
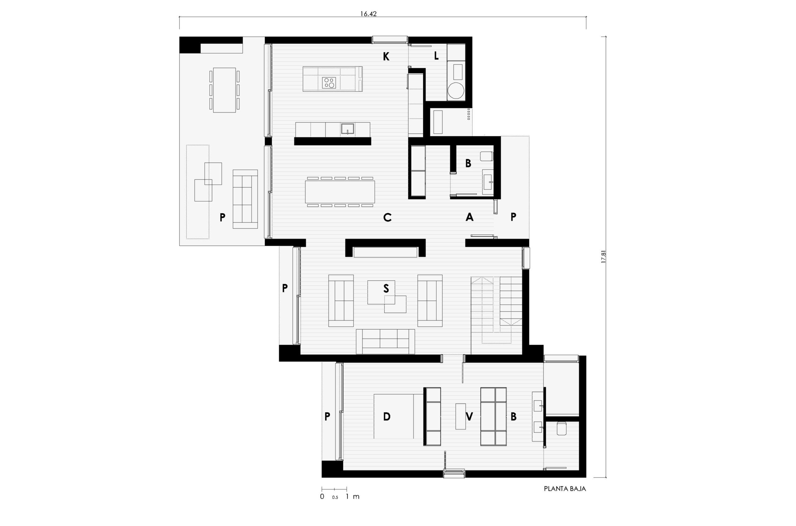
El diseño de dos plantas cuenta con una planta baja donde se distribuye una amplia zona de día en la que la funcionalidad y el espacio se alteran a lo largo de día según las necesidades del momento. Espacios independientes en salón, comedor y cocina pero relacionados visualmente obteniendo una mayor sensación espacial. También cuenta con un espacioso dormitorio principal en planta baja en el que el vestidor y el amplio baño cubrirán cualquier expectativa.
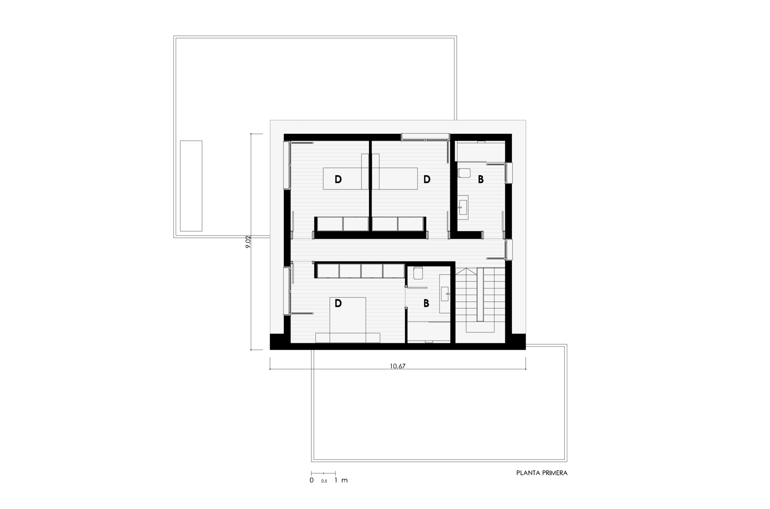
En la planta superior se completa la zona de noche con otros 3 amplios dormitorios y un baño.
| SUP. ÚTIL (pisable) | 264,57 | m2 | |
| VIVIENDA | 211,65 | m2 | |
| PORCHES | 52,92 | m2 | |
| PLANTA BAJA | |||
| VIVIENDA | 140,10 | m2 | |
| vestibulo escalera | 12,70 | m2 | |
| comedor | 21,90 | m2 | |
| cocina | 20,85 | m2 | |
| lavadero | 4,50 | m2 | |
| aseo | 3,00 | m2 | |
| salón | 39,35 | m2 | |
| dormitorio ppal | 13,70 | m2 | |
| vestidor | 12,60 | m2 | |
| baño ppal | 11,50 | m2 | |
| PORCHE | 37,22 | m2 | |
| porche salón comedor | 29,30 | m2 | |
| porche acceso | 3,96 | m2 | |
| porche acceso 02 | 3,96 | m2 |
| PLANTA PRIMERA | |||
| VIVIENDA | 71,55 | m2 | |
| ditribuidor / escalera | 15,55 | m2 | |
| dormitorio 01 | 12,60 | m2 | |
| dormitorio 02 | 19,30 | m2 | |
| dormitorio 03 | 19,30 | m2 | |
| baño 01 | 4,80 | m2 | |
| PORCHE | 15,70 | m2 | |
| porche | 15,70 | m2 | |
| SUP. CONSTRUIDA | 310,47 | m2 | |
| VIVIENDA | 256,19 | m2 | |
| PORCHES | 54,28 | m2 | |
| PLANTA BAJA | |||
| vivienda | 169,50 | m2 | |
| porches | 38,54 | m2 | |
| PLANTA PRIMERA | |||
| vivienda | 86,69 | m2 | |
| porches | 15,74 | m2 |



