Vivienda industrializada hormigón Modelo Tiana 4D 2P 2.312
-
" LOADING="LAZY" SRCSET="HTTPS://CASASINHAUS.COM/WP-CONTENT/UPLOADS/2020/08/2.XXX_MODELO-TIANA_VIVIENDA-INDUSTRIALIZADA-HORMIGON.JPG 1920W, HTTPS://CASASINHAUS.COM/WP-CONTENT/UPLOADS/2020/08/2.XXX_MODELO-TIANA_VIVIENDA-INDUSTRIALIZADA-HORMIGON-300X169.JPG 300W, HTTPS://CASASINHAUS.COM/WP-CONTENT/UPLOADS/2020/08/2.XXX_MODELO-TIANA_VIVIENDA-INDUSTRIALIZADA-HORMIGON-768X432.JPG 768W, HTTPS://CASASINHAUS.COM/WP-CONTENT/UPLOADS/2020/08/2.XXX_MODELO-TIANA_VIVIENDA-INDUSTRIALIZADA-HORMIGON-1024X576.JPG 1024W, HTTPS://CASASINHAUS.COM/WP-CONTENT/UPLOADS/2020/08/2.XXX_MODELO-TIANA_VIVIENDA-INDUSTRIALIZADA-HORMIGON-600X338.JPG 600W, HTTPS://CASASINHAUS.COM/WP-CONTENT/UPLOADS/2020/08/2.XXX_MODELO-TIANA_VIVIENDA-INDUSTRIALIZADA-HORMIGON-1150X646.JPG 1150W, HTTPS://CASASINHAUS.COM/WP-CONTENT/UPLOADS/2020/08/2.XXX_MODELO-TIANA_VIVIENDA-INDUSTRIALIZADA-HORMIGON-1320X743.JPG 1320W" SIZES="(MAX-WIDTH: 1920PX) 100VW, 1920PX
Detalles
Contacta con nosotros
"*" señala los campos obligatorios
Información
Una casa de arquitecto de dos plantas realizada con el sistema EMOHA que combina la robustez del hormigón y la versatilidad de los espacios abiertos.
Dos plantas en los que imaginar tu futuro hogar cumpliendo las más altas espectativas de diseño en el espacio y calidad en los materiales y acabados.
Las líneas que diseñan esta casa recorren ambas plantas convitiendola en una figura sinuosa propia de una casa moderna y atemporal.
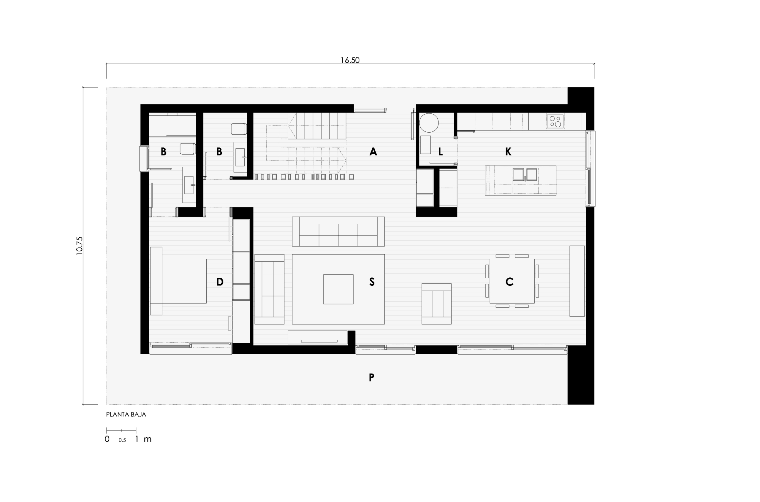
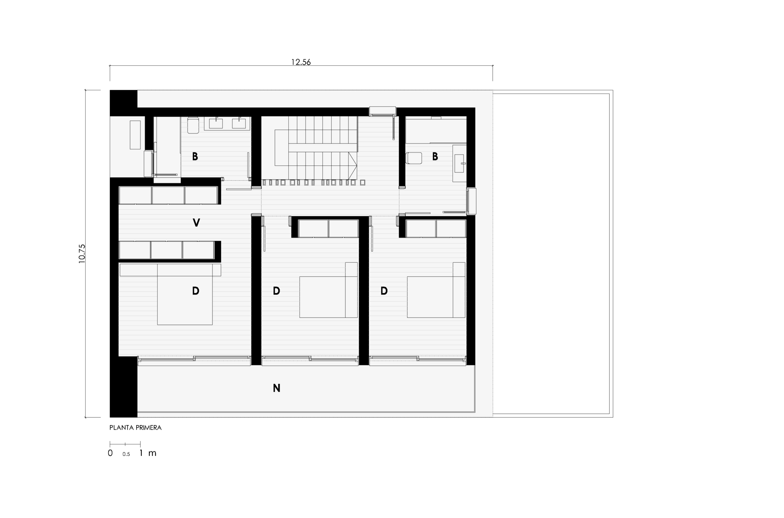
Programa
La vivienda industrializada hormigón del modelo Tiana combina un gran espacio de alta calidad donde el salón comedor y la cocina comparten vistas al jardín. Una estancia adicional en planta baja con un baño completo redondea el programa de la planta baja añadiendo versatilidad funcional a la casa.
En la planta superior dos dormitorios dobles comparten un baño completo y la master room con vestidor con su propio espacio y un amplio baño principal completan el programa.
| SUP. ÚTIL (pisable) | 270,85 | m2 | ||
| VIVIENDA | 189,54 | m2 | ||
| PORCHES | 81,31 | m2 | ||
| PLANTA BAJA | ||||
| VIVIENDA | 104,37 | m2 | ||
| recibidor | 12,38 | m2 | ||
| vestidor | 5,00 | m2 | ||
| dormitorio 01 | 11,50 | m2 | ||
| salón comedor | 49,82 | m2 | ||
| cocina | 12,92 | m2 | ||
| galería | 6,70 | m2 | ||
| baño 01 | 6,05 | m2 | ||
| PORCHES | 50,19 | m2 | ||
| porche 01 | 50,19 | m2 | ||
| PLANTA PRIMERA | ||||
| VIVIENDA | 85,17 | m2 | ||
| distribuidor | 14,64 | m2 | ||
| dormitorio 02 | 19,67 | m2 | ||
| dormiotorio 03 | 13,33 | m2 | ||
| dormitorio ppal | 15,56 | m2 | ||
| vestidor | 9,22 | m2 | ||
| baño 02 | 4,58 | m2 | ||
| baño ppal | 8,17 | m2 | ||
| PORCHES | 31,12 | m2 | ||
| porche 02 | 31,12 | m2 | ||
| SUP. CONSTRUIDA | 312,36 | m2 | ||
| VIVIENDA | 232,74 | m2 | ||
| PORCHES | 79,62 | m2 | ||
| PLANTA BAJA | ||||
| vivienda | 131,77 | m2 | ||
| porches | 45,61 | m2 | ||
| PLANTA PRIMERA | ||||
| vivienda | 100,97 | m2 | ||
| porches | 34,01 | m2 | ||




