111 modelos, 20 nuevos

Selector idioma


Según tu necesidades te recomendamos estas Casas modulares

¡Te ayudamos a encontrar tu nuevo hogar!

Para satisfacer tus necesidades y mantenernos dentro de tu presupuesto, te recomendamos una serie de pautas a tener en cuenta. Estas viviendas ofrecen una solución moderna y eficiente que se adapta perfectamente a tus requisitos. Las casas modulares InHAUS son conocidas por su diseño versátil, eficiencia energética y la posibilidad de personalización según tus preferencias. Te animamos a explorar esta opción para encontrar la combinación perfecta entre tus necesidades, tu presupuesto y la personalización

¡EMPEZAMOS!

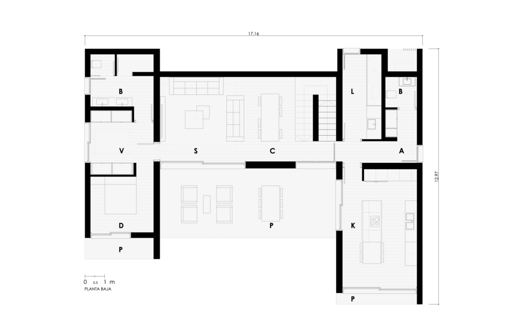
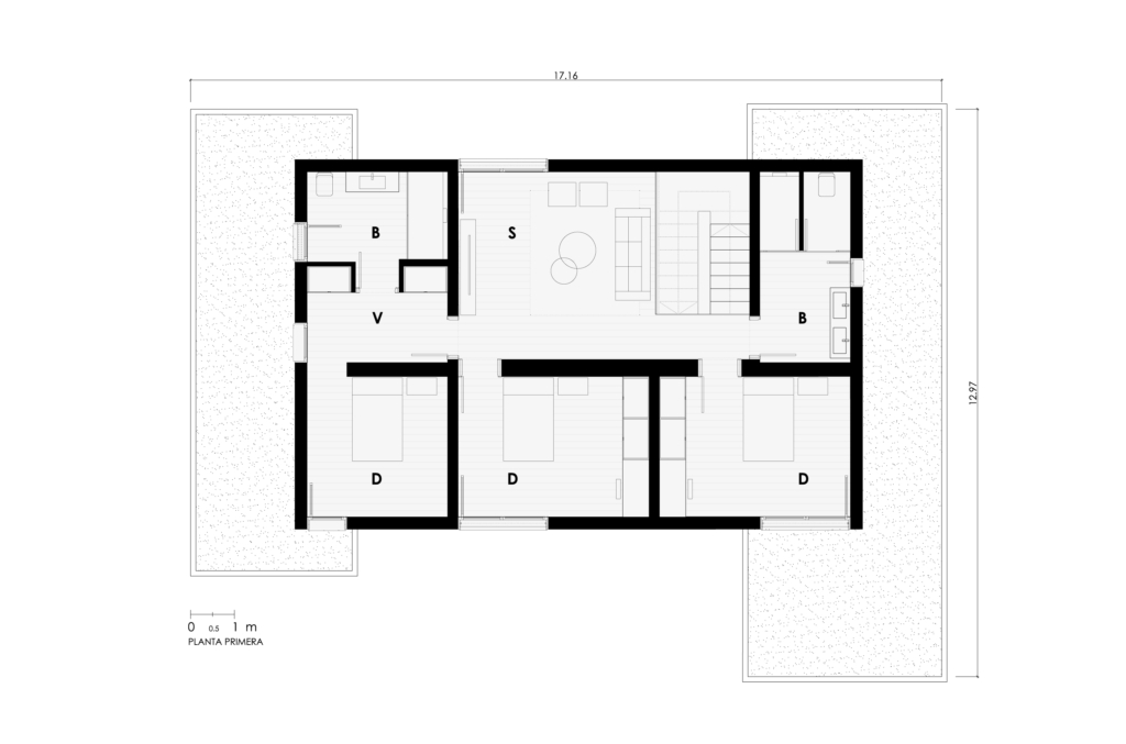
NÚMERO DE PLANTAS

Las casas modulares de menos dimensión divida en dos plantas es una buena opción, estas presentan un diseño el cual en cada una de las plantas se intenta sacar el máximo rendimiento posible a los espacios. Los espacios en este tipo de viviendas se puede dividir en planta baja todas las zonas comunes intentando generar espacios abiertos y funcionales, y en la parte de arriba la zona de dormitorios creando una distribución que genere la máxima privacidad.

VOLUMEN

Estas casas modulares tienen un volumen compacto y funcional distribuido en dos plantas, lo que permite un máximo aprovechamiento de la fachada. Este enfoque se debe a la distribución de los espacios de manera inteligente, donde cada rincón se optimiza para exprimir al máximo su uso específico. La vivienda se desarrolla formando un volumen compacto uno encima de otro, con una notoria distinción de estancias entre plantas. Esto significa que se puede sacar el mejor partido tanto del interior como del exterior de la vivienda, aprovechando al máximo el espacio disponible en todos los niveles.

PROGRAMA

Cuando diseñamos espacios para una casa de dos plantas, pero de forma más compacta, priorizamos la funcionalidad como uno de los principios fundamentales. Este objetivo se logra al crear áreas amplias en la planta baja, minimizando las divisiones entre espacios para obtener la máxima amplitud posible. En la planta superior, donde se ubican los dormitorios, se introducen divisiones de manera estratégica para garantizar habitaciones espaciosas y una privacidad óptima. Esta planificación busca brindar tanto comodidad como eficiencia en el uso del espacio, creando un hogar funcional y armonioso en todos los niveles.

VENTANALES

En el contexto de casas de dos plantas, la colocación de dos o más ventanales adquiere una importancia aún mayor. Estos ventanales no solo cumplen una función estética, sino que desempeñan un papel fundamental en la iluminación y ventilación de la vivienda. Al estar distribuidos en ambas plantas, contribuyen a crear un ambiente interior luminoso y aireado, lo que resulta en un mayor bienestar y una sensación de amplitud en toda la casa. Además, los ventanales permiten la conexión visual con el entorno exterior, aportando vistas panorámicas que añaden valor estético y una conexión armoniosa con el paisaje circundante. En resumen, en las casas de dos plantas, la estratégica colocación de múltiples ventanales no solo realza la estética, sino que también mejora significativamente la calidad de vida en el interior de la vivienda.

Nuestra meta es proporcionarte la información necesaria para que te ayuden al máximo a tomar decisiones a la hora de realizar tu hogar y se ajuste al máximo a ti en cuento a presupuesto y personalización.

Contacta con nosotros

Tanto si eres particular como profesional, no dudes en contactar con nosotros para ampliar información, pedir presupuesto personalizado o realizar cualquier consulta.

Consulta modelos y precios

En nuestro Catálogo 111 dispones de más de cien modelos de casas para escoger. Regístrate para acceder a la información y precios de todos los modelos.

El equipo inHaus

Comunicación

© 2025 Casas inHAUS SL – Todos los derechos reservados | Aviso legal | Política de cookies | Política de privacidad